 
                                                                                                            - Virtuálna prehliadka
- Horná 26A, Banská Bystrica,
| Interné ID: | Byty na Hornej - 2A | 
|---|---|
| Ulica: | Horná 26A | 
| Mestská časť: | Centrum | 
| Obec: | Banská Bystrica | 
| Okres: | Banská Bystrica | 
| Kraj: | Banskobystrický kraj | 
| Druh: | Byty | 
| Typ: | Predaj | 
| Typ bytu: | 3-izbový byt | 
Spoločnosť DVOŘÁK & PARTNERS vám v exkluzívnom zastúpení developera prináša 3-izbový byt v novom projekte Byty na Hornej.
Virtuálnu obhliadku si môžete pozrieť tu: https://my.matterport.com/show/?m=oSs9Rr5qqjP
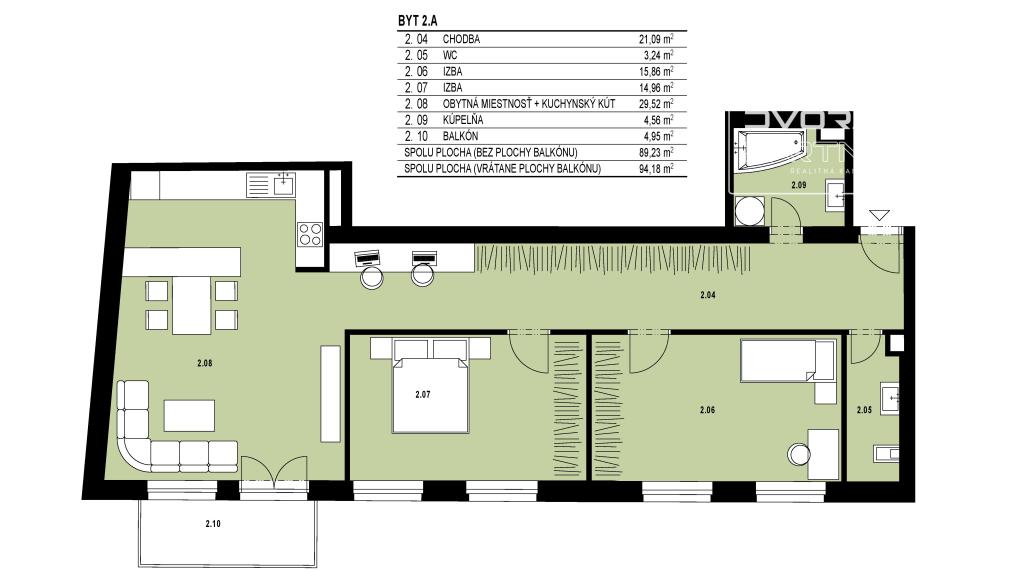
Výmera bytu je 89,23m2 + 4,95m2 loggia + pivničná kobka.
LOKALITA: Bytový dom sa nachádza priamo v historickom centre mesta Banská Bystrica. V tesnej blízkosti nájdete mestský park a za necelé 3 minúty sa dostanete pešou chôdzou na hlavné Námestie SNP. Lokalita disponuje kompletnou občianskou vybavenosťou (škôlka, škola, pošta, reštaurácie, kultúrne zariadenia).
PREVEDENIE: Byt sa predáva v stave holobyt.
PIVNIČNÁ KOBKA: V cene bytu je zahrnutá pivničná kobka v suteréne bytového domu.
PARKOVANIE: Možnosť dokúpiť vonkajšie parkovacie miesto.
KOLAUDÁCIA: SKOLAUDOVANÉ 08/2025
V rámci tohto projektu Vám prinášame jedinečnú ponuku bývania, ktorá spája pohodlie s výhodami života v centre mesta. Využite aj Vy možnosť bývať priamo v centre diania kde môžete zažívať pulzujúcu atmosféru mesta a zároveň si užívať pokoj a výhody tichej lokality. Vitajte v novom štýle bývania, ktorý Vám ponúkne to najlepšie z oboch svetov.
Vyberte si svoje nové bývanie v centre mesta Banskej Bystrice a dohodnite si obhliadku ešte dnes. Telefonicky na tel. čísle 0908 600 665 alebo mailom na dvorak@dvorakpartners.sk.
 
                                        certifikovaný realitný maklér a majiteľ spoločnosti DVOŘÁK & PARTNERS s.r.o.
 
                                                                                                     
                                                                                            Obchodovaniu sa venujem v rôznych odvetviach už viac ako 10 rokov a som jedným z tých, ktorí môžu povedať, že práca s ľuďmi je pre nich poslaním. Je to druh životného štýlu, ktorý verím, že spolu s profesionalitou a fokusom na výsledok vytvára príležitosti, ktoré sú tou správnou cestou k úspechu.
Koncom roka 2022 som sa rozhodol vydať vlastnou cestou a budovať si vlastné meno, ktoré bude stáť na kvalite, precíznosti a dôvere. Hodnotách, ktoré sú dnes pre správne fungujúcu firmu kľúčové.
Verím, že v dnešnom svete je kvalita dôležitejšia než kvantita a preto chcem aby klienti značku DVOŘÁK & PARTNERS brali nielen ako realitnú kanceláriu, ale ako obchodného partnera, na ktorého sa budú môcť kedykoľvek obrátiť.
Pojem PARTNERS preto predstavuje nielen kolegov, ale takisto klientov, ktorým sme pomohli nájsť nielen nové bývanie, ale svoj nový domov,
obchodných partnerov, ktorí sa na nehnuteľnosti pozerajú ako na investičný nástroj alebo jednoducho všetkých tých, ktorí chcú mať za sebou kvalitného partnera, ktorý ich celým procesom kúpy, predaja alebo prenájmu nehnuteľnosti prevedie až do úspešného konca.
Realitný trh sa dynamicky mení, prináša so sebou množstvo príležitostí, skúseností a zároveň veľa inšpiratívnych ľudí a práve to ma na tejto práci napĺňa.